引言
隨著全球對氣候變化的關注日益增加,氫能作為一種清潔能源備受矚目。特別是在航空領域,氫能因其高能量密度和零碳排放的特性,被視為未來替代化石燃料的理想選擇。然而,液態氫(LH2)的儲存和運輸面臨著巨大的技術挑戰,尤其是在極低溫(-253°C)和高壓(4 bar)條件下。為了應對這些挑戰,研究人員正在開發新型的復合材料儲罐,以替代傳統的金屬儲罐,從而減輕重量并提高耐久性。
本文將介紹一項由瑞典RISE研究所主導的研究項目,該項目旨在設計和制造一種無襯里的復合材料儲罐,用于液態氫的儲存。文章將詳細討論儲罐的設計、制造過程以及低溫測試結果,并探討其在未來航空應用中的潛力。
氫能的高能量密度使其成為航空領域的理想燃料,但為了減少儲罐體積,氫必須以液態形式儲存。液態氫的儲存溫度極低(-253°C),且需要保持一定的壓力(4 bar)。傳統的金屬儲罐雖然能夠滿足這些要求,但其重量較大,且長期使用中容易出現氫脆問題。相比之下,碳纖維增強聚合物復合材料(CFRP)具有輕質、高強度的特點,是未來航空儲罐的理想選擇。
然而,CFRP儲罐在低溫環境下也面臨一些挑戰。例如,纖維與基體之間的裂紋可能在遠低于纖維破壞應力的情況下出現,導致氣體泄漏和壓力損失。為了防止泄漏,通常需要在儲罐內部添加金屬或聚合物襯里,但這會增加重量,并可能因熱膨脹差異導致襯里疲勞或與儲罐壁分離。因此,無襯里(Type V)復合材料儲罐成為了研究的重點。
2. 設計與材料選擇
2.1 設計需求
液態氫儲罐的設計需要考慮多個因素,包括儲存溫度、壓力、循環使用次數以及熱應力等。在本次研究中,儲罐的設計目標是能夠承受每天至少3次充放循環,持續20年(約20000次循環)。此外,儲罐在正常操作中不會完全排空或加熱超過110°C,只有在年度維護時才會完全排空和加熱。
2.2 材料選擇
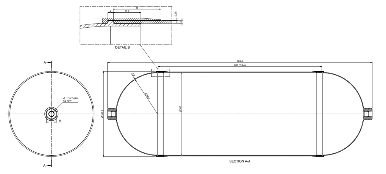
儲罐的復合材料部分采用了Oxeon公司生產的TeXtreme?薄層單向(UD)帶材,纖維為Pyrofil? TR50S碳纖維,基體為適合低溫應用的環氧樹脂。通過濕法纖維纏繞工藝制造,最終的單層厚度約為0.10 mm。為了確保材料的低溫性能,研究人員在室溫和-253°C條件下對材料進行了詳細的力學性能測試,并確定了熱膨脹系數(CTE)。
鈦合金(Ti-6Al-4V)被選為端蓋材料,因其低密度和與復合材料相近的熱膨脹系數。端蓋通過增材制造(3D打印)技術生產,以確保復雜的雙曲面形狀和均勻的厚度。

3. 設計過程
3.1 設計概念
儲罐的設計采用了復合材料圓柱體與鈦合金端蓋結合的方式。復合材料圓柱體通過濕法纖維纏繞工藝制造,而鈦合金端蓋則通過增材制造技術生產。這種設計旨在最大限度地減少熱應力,并確保在低溫條件下的結構完整性。
3.2 初步設計
為了減少鈦合金端蓋與復合材料圓柱體之間的熱應變不匹配,研究人員選擇了±41°的纏繞角度,以使復合材料的熱膨脹系數與鈦合金相匹配。通過經典層壓板理論(CLT)計算,確定了在-253°C條件下的熱應力和失效壓力。

3.3 詳細設計與有限元分析
為了進一步優化設計,研究人員使用有限元分析(FEA)模擬了儲罐在熱載荷和內部壓力下的應力分布。分析結果表明,粘接接頭是設計的薄弱環節,尤其是在低溫條件下,粘接層的應力可能超過其強度極限。因此,設計中對粘接接頭的長度進行了調整,以確保在10 bar壓力下的安全性。
4. 制造與組裝
4.1 復合材料圓柱體的制造
復合材料圓柱體通過濕法纖維纏繞工藝制造,采用了20 mm寬的薄層帶材。為了確保低孔隙率和高纖維體積分數,研究人員在纏繞過程中使用了干法壓縮層和干法環向纏繞層。最終,圓柱體的纖維體積分數達到了51%。

概覽裝配圖
4.2 金屬端蓋的制造
鈦合金端蓋通過直接能量沉積(DED)技術進行增材制造。制造過程中,端蓋的復雜形狀和均勻厚度得到了保證。為了釋放內部應力,端蓋在加工前進行了退火處理。

a端蓋采用 5 級鈦合金DED 打印,b管、端蓋和外環之間的粘合接頭。藍色源于加工前的退火
4.3 組裝與粘接
復合材料圓柱體與鈦合金端蓋通過環氧樹脂粘接劑進行連接。組裝過程中,研究人員對粘接表面進行了清潔和處理,以確保粘接質量。組裝完成后,儲罐通過了真空泄漏測試,確保無泄漏。
5. 測試與結果
5.1 循環測試
兩個儲罐在西班牙的INTA-CEAES設施中進行了20次充放循環測試,使用了液氮(LN2)模擬液態氫的儲存條件。測試過程中,儲罐的內部壓力達到了4 bar,未發現泄漏或損壞跡象。

循環試驗開始時的壓力、重量、溫度和應變歷史
5.2 爆破測試
其中一個儲罐在爆破測試中達到了近30 bar的壓力,最終在29.4 bar時發生破裂。測試結果表明,儲罐的復合材料部分在高壓下表現出良好的強度,破裂發生在圓柱體的中央部分,而非粘接接頭處。

爆破試驗的壓力、溫度和應變歷史
6. 未來設計與開發的啟示
本次研究展示了無襯里復合材料儲罐在液態氫儲存中的潛力。與傳統的金屬儲罐相比,復合材料儲罐的重量減輕了60%,且能夠承受高達30 bar的壓力。未來的設計可以進一步優化端蓋的重量,并探索全復合材料儲罐的可能性。此外,還需要對粘接劑在低溫條件下的性能進行更深入的研究,以確保儲罐的長期可靠性。
7. 結論
通過本次研究,研究人員成功設計、制造并測試了一種無襯里復合材料儲罐,用于液態氫的儲存。儲罐在循環測試和爆破測試中表現出優異的性能,證明了其在未來航空應用中的潛力。
在未來的設計和發展中,金屬端蓋和全復合材料儲氫罐各有優劣。金屬端蓋雖然有一些缺點,比如需要粘結接頭、比重大、熱應變匹配困難,但它也有很多優勢,如可作為標準部件生產,設計靈活性高,便于連接各種設備等。而全復合材料儲氫罐雖然有望進一步減輕重量、減少熱應變,但在制造工藝上還面臨挑戰,不同部件的制造和連接需要更深入的研究。
此外,目前的研究還存在一些不足。比如,測試循環次數遠遠低于實際應用所需的 20000 次,這意味著我們對儲氫罐長期性能的了解還不夠。而且,在低溫條件下,粘合劑的性能研究還不夠充分,薄鋪層復合材料的原位強度測試方法也有待進一步開發。未來,我們需要更好地理解儲氫罐與其他系統的相互作用和集成,明確設計載荷和安全系數,考慮材料性能的變化,不斷優化儲氫罐的設計和制造工藝。
無內膽復合儲氫罐為氫能源在航空領域的應用帶來了新的希望。雖然目前還面臨諸多挑戰,但隨著科研人員不斷深入研究和技術的持續進步,相信在不久的將來,它能夠克服這些難題,為航空業的綠色發展注入強大動力,助力全球氫能源產業邁向新的高度。
參考文獻:
1.Sloop, J.L. (1978). Liquid hydrogen as a propulsion fuel, 1945–1959. NASA SP-4404.
2.Air, A., Shamsuddoha, M., Prusty, B.G. (2023). A review of Type V composite pressure vessels and automated fibre placement based manufacturing. Compos. B.
3.Zheng, H., Zeng, H., Zhang, J., Sun, H. (2018). The application of carbon fiber composites in cryotank. In: Ares, A.E. (ed.) Ch. 5 in solidification. IntechOpen.
4.Liu, N., Ma, B., Liu, F., Huang, W., Xu, B., Qu, L., Yang, Y. (2021). Progress in research on composite cryogenic propellant tank for large aerospace vehicles. Compos. A.
下一篇:機器人發展史及其復合材料應用